
Bilder
Zum Anzeigen der Galerie auf ein Bild tippen
Sie interessieren sich für unser Angebot? Kontaktieren Sie uns
Riegler & Partner Holding GmbH
8054 Seiersberg-Pirka
Tel.: +43 (0)664 9139749
Email: office@r-p.at
Beschreibung:
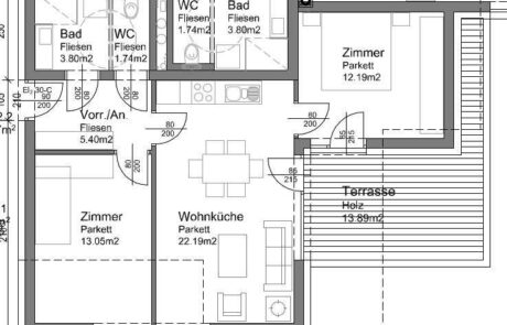
Zum Verkauf steht eine attraktive, barrierefreie Anlegerwohnung in der Gemeinde Seiersberg-Pirka – unweit von Graz und hervorragend an die Infrastruktur angebunden. Die Wohnung eignet sich perfekt für Kapitalanleger, da bereits vermietet und ab sofort stabile Mieteinnahmen generiert werden.
Eckdaten zur Wohnung:
- Adresse: Kärntner Straße 570/2, 8054 Seiersberg-Pirka
- Wohnfläche: 57,94 m²
- Raumaufteilung:
- 2 Schlafzimmer
- Wohn-/Essbereich mit Küche
- Badezimmer, separates WC, Vorraum
- Terrasse: 14,14 m²
- Stockwerk: 1. Obergeschoss (mit Lift, barrierefrei)
- Kellerabteil: vorhanden
- Heizung: Fernwärme
| Objekttyp | Wohnung |
| Bautyp | Neubau |
| Zustand | Sehr gut/gut |
| Wohnfläche | 57,94 m² |
| Zimmer | 3 |
| Stockwerk(e) | 1 |
| Topnummer | Top 570/2 |
| Böden | Naturstein |
| Verfügbar | ab sofort |
| Einbauküche | Teilmöbliert / Möbliert |
| Keller | Fahrstuhl |
| Garage | Parkplatz |
| Barrierefrei | Terrasse 14,14 m² |
HWB (kWh/m²/Jahr): 29
HWB Energieklasse: B
Die Wohnung liegt in der beliebten Wohngegend Seiersberg-Pirka – nur wenige Minuten von der Shopping City Seiersberg, Nahversorgern, Schulen, Ärzten sowie der Autobahn entfernt. Eine sehr gute Vermietbarkeit ist durch die Nähe zu Graz und die hervorragende Verkehrsanbindung gegeben.
Anlagefakten:
- Derzeit vermietet: ja
- Monatliche Mieteinnahmen netto: EUR 617,76
- Verfügbar: ab sofort
- Verkaufspreis Wohnung: EUR 199.900 (netto)
- Verkaufspreis TG-Plätze: je EUR 15.000 (netto)
Interesse geweckt?
Gerne übermitteln wir auf Anfrage weitere Unterlagen oder vereinbaren einen Besichtigungstermin.
Kärntnerstraße 570
8054 Seiersberg
Graz Umgebung
Steiermark
€ 199.000
Kaufpreis
Zusatzinformation: Kaufpreis Wohnung EUR 199.000,00 Netto, Kaufpreis je Tiefgarage EUR 15.000,00 Netto
| Objekttyp | Wohnung |
| Bautyp | Neubau |
| Zustand | Sehr gut/gut |
| Wohnfläche | 57,94 m² |
| Zimmer | 3 |
| Stockwerk(e) | 1 |
| Topnummer | Top 570/2 |
| Böden | Naturstein |
| Verfügbar | ab sofort |
| Einbauküche | Teilmöbliert / Möbliert |
| Keller | Fahrstuhl |
| Garage | Parkplatz |
| Barrierefrei | Terrasse 14,14 m² |
HWB (kWh/m²/Jahr): 29
HWB Energieklasse: B
Die Wohnung liegt in der beliebten Wohngegend Seiersberg-Pirka – nur wenige Minuten von der Shopping City Seiersberg, Nahversorgern, Schulen, Ärzten sowie der Autobahn entfernt. Eine sehr gute Vermietbarkeit ist durch die Nähe zu Graz und die hervorragende Verkehrsanbindung gegeben.
Anlagefakten:
- Derzeit vermietet: ja
- Monatliche Mieteinnahmen netto: EUR 617,76
- Verfügbar: ab sofort
- Verkaufspreis Wohnung: EUR 199.900 (netto)
- Verkaufspreis TG-Plätze: je EUR 15.000 (netto)
Interesse geweckt?
Gerne übermitteln wir auf Anfrage weitere Unterlagen oder vereinbaren einen Besichtigungstermin.
Kärntnerstraße 570
8054 Seiersberg
Graz Umgebung
Steiermark
€ 199.000
Kaufpreis
Zusatzinformation: Kaufpreis Wohnung EUR 199.000,00 Netto, Kaufpreis je Tiefgarage EUR 15.000,00 Netto
Zum Verkauf steht eine attraktive, barrierefreie Anlegerwohnung in der Gemeinde Seiersberg-Pirka – unweit von Graz und hervorragend an die Infrastruktur angebunden. Die Wohnung eignet sich perfekt für Kapitalanleger, da bereits vermietet und ab sofort stabile Mieteinnahmen generiert werden.
Eckdaten zur Wohnung:
- Adresse: Kärntner Straße 570/2, 8054 Seiersberg-Pirka
- Wohnfläche: 57,94 m²
- Raumaufteilung:
- 2 Schlafzimmer
- Wohn-/Essbereich mit Küche
- Badezimmer, separates WC, Vorraum
- Terrasse: 14,14 m²
- Stockwerk: 1. Obergeschoss (mit Lift, barrierefrei)
- Kellerabteil: vorhanden
- Heizung: Fernwärme
Sie interessieren sich für unser Angebot? Kontaktieren Sie uns
Riegler & Partner Holding GmbH
8054 Seiersberg-Pirka
Tel.: +43 (0)664 9139749
Email: office@r-p.at
Weitere Objekte
Werden auch Sie ein Teil von Riegler und Partner
Schicken Sie uns Ihre Anfrage











































